Vivienda Santa Isabel
Vivienda en Santa Isabel: Modernidad, Calidad y Conexión con el Exterior
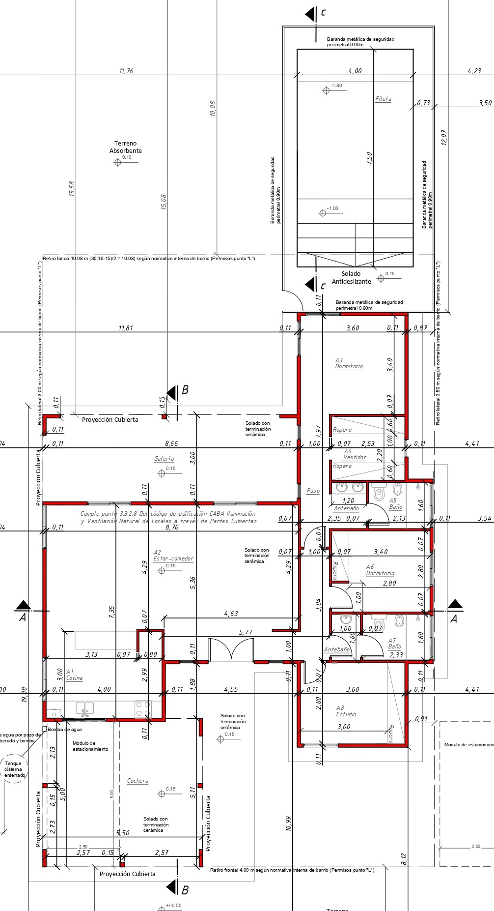
Ubicada en el tranquilo entorno de Santa Isabel, esta vivienda unifamiliar de 120 m² combina diseño contemporáneo, funcionalidad y acabados de alta calidad. Concebida para quienes valoran la vida en espacios luminosos y conectados con la naturaleza, la casa ofrece un ambiente acogedor y confortable.
El diseño presenta un sector público en concepto abierto , donde el living, el comedor y la cocina se integran en un espacio amplio y fluido. Este enfoque fomenta la interacción familiar y social, a la vez que maximiza la sensación de amplitud y luminosidad gracias a sus grandes aberturas que enmarcan vistas al exterior.
La vivienda se conecta al patio privado , un oasis al aire libre que cuenta con una pileta y un espacio verde ideal para el disfrute y el relax. Este vínculo entre el interior y el exterior está cuidadosamente diseñado para promover una experiencia de vida en armonía con el entorno, siendo perfecto tanto para momentos de calma como para reuniones sociales.
Construida con el sistema steel frame , la vivienda destaca por su eficiencia estructural y energética, ofreciendo una construcción duradera, liviana y sostenible. Las terminaciones de alta calidad, junto con el diseño contemporáneo, aseguran un equilibrio entre estética y funcionalidad.
Esta casa es una muestra de cómo la arquitectura puede combinar amplias vistas , confort y una fuerte conexión con el exterior, creando un hogar ideal para quienes buscan calidad de vida en un entorno natural y moderno.
- Ubicación: Escobar, Buenos Aires, Argentina .
- Superficie: 120 m² .
- Año de Proyecto: 2018
- Tipo de Proyecto: Residencial











